+386 (0)3 5814 600 info@panles.si
Ponedeljek-Petek: 7:00-15:00 Ogled hiše možen kadarkoli
Rog. Slatina, Slovenija 3250, Tekačevo 62b

Model 75

Kategorija: Pritlična družinska hiša

Cena: Pošljite povpraševanje

Kvadratura: 75m2

Vselitev: 6 tednov

Pošljite povpraševanje

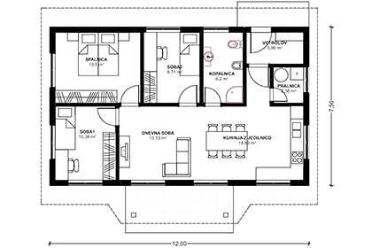
Hiša 75 je pritlične izvedbe z velikim osrednjim dnevnim delom z izhodom na pokrito teraso. Primerna je za štiričlansko družino. Kljub velikemu dnevnemu prostoru za preživljanje skupnega časa družine je ostalo še več kot dovolj prostora za tri sobe, kopalnico in pralnico. Veliko steklenih površin omogoča zadostno količino dnevne svetlobe in energije ter daje lep pogled na okolico.

Zunanji izgled hiše je klasični, s podaljšano streho nad teraso ter lesenimi dodatki, ki izražajo konstrukcijo hiše. Z zunanjimi žaluzijami in velikimi okni pa smo dodali hiši moderen pridih.

Print verzija tlorisa
Imate vprašanje ali želite ponudbo? Kontaktirajte nas