Kategorija: Nadstropna družinska hiša
Cena: Pošljite povpraševanje
Kvadratura: 150m2
Vselitev: 6 tednov
Hiša N150 K je zasnovana v dveh etažah, katere povezuje notranje stopnišče. Prostorsko je urejena tako, da dnevni del hiše zajema čim več dnevnega sonca, kar daje bivanju veliko povezanost z naravo, ter zdravo in ugodno življenje. Pritlični del zajema dnevni prostor s kuhinjo in jedilnico, v kateri je izhod na letno teraso, shrambo ter spalnim prostorom s kopalnico.
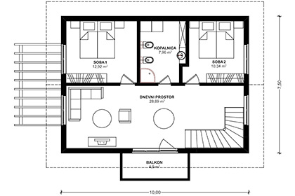
V mansardnem delu pa se nahaja dnevni prostor z izhodom na balkon, kabinet, kopalnica in dve razmeroma veliki otroški sobi. Zunanji izgled je klasični, kontaktno fasado in lesenimi dodatki, kar daje hiši dodatno naravno noto. Zaradi simetrije pa je možno hišo postaviti na vseh terenih, usmerjenost pa prilagoditi soncu.
Print verzija tlorisa